Własne mieszkanie w niskiej cenie? Gmina Bobowa prowadzi nabór wniosków
Już w kwietniu tego roku pojawiły się pierwsze informacje o planach dotyczących budowy mieszkań w ramach Społecznej Inicjatywy Mieszkaniowej na terenie gminy Bobowa. Lokale udostępniane w takiej formie miały być odpowiedzią szczególnie na potrzeby młodych osób, które marzą o własnych czterech kątach, ale nie mogą sobie pozwolić na zaciągnięcie kredytu. Dzisiaj plany stają się rzeczywistością – ruszył nabór wniosków. Pora wziąć sprawy we własne ręce!
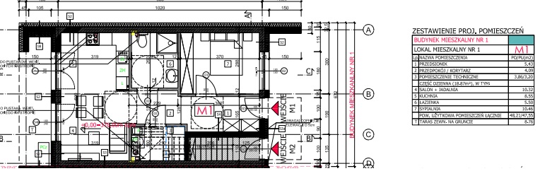
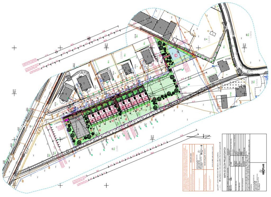
Dzięki współpracy Gminy Bobowa oraz spółki SIM Tarnów powstał projekt, który przewiduje powstanie 20 lokali mieszkaniowych w zabudowie szeregowej z infrastrukturą towarzyszącą. Według planów mieszkania mają mieć metraż 41,8 m² oraz 59,9 m². Nowe budynki powstaną w Siedliskach, na działce z malowniczym widokiem. Burmistrz Bobowej, Marcin Wąs, niejednokrotnie podkreślał atrakcyjność tego miejsca.
– Zadbane placówki oświatowe, infrastruktura sportowo-rekreacyjna, rozwijająca się oferta kulturalna… Plusów nie brakuje, dzięki czemu w naszej gminie przedsiębiorcy chętnie inwestują – mówi.
W lipcu bieżącego roku władze samorządowe wzięły udział w szkoleniu dotyczącym zasad prowadzenia naborów przyszłych najemców. Od dzisiaj będą działać w praktyce.
Korzyści z takich rozwiązań przedstawił również prezes KZN SIM Tarnów, Mateusz Dumański:
– Podejmując współpracę ze KZN SIM Tarnów, gmina zyskuje realne narzędzie do rozwoju lokalnego rynku mieszkaniowego i poprawy warunków życia mieszkańców. Dzięki udziałowi w KZN SIM Tarnów możliwe jest budowanie nowoczesnych, dostępnych cenowo mieszkań na wynajem z opcją dojścia do własności – bez konieczności dużych nakładów finansowych po stronie gminy. Współpraca z KZN SIM Tarnów pozwala także na: pozyskanie wsparcia finansowego z Banku Gospodarstwa Krajowego (BGK), dostęp do finansowania np. z Funduszu Dopłat oraz Rządowego Funduszu Rozwoju Mieszkalnictwa, zwiększenie atrakcyjności gminy dla młodych rodzin i pracowników lokalnych firm, aktywizację gospodarczą regionu poprzez zlecenia dla lokalnych wykonawców i firm budowlanych, rozwój infrastruktury społecznej i zrównoważony rozwój przestrzenny, a także pozytywny wizerunek jako samorządu dbającego o potrzeby swoich mieszkańców. Współpraca z KZN SIM Tarnów to długofalowa inwestycja w stabilność demograficzną, społeczną i gospodarczą gminy – to sposób na tworzenie nowoczesnych, przyjaznych miejsc do życia dla obecnych i przyszłych pokoleń mieszkańców
To trzeba spełnić
Zasady przeprowadzenia naboru wniosków zostały określone w Uchwale nr XV/124/25 Rady Miejskiej z 8 września 2025 roku.
Najemcą mieszkania SIM może zostać osoba, która:
· nie posiada innego lokalu na terenie miejscowości Siedliska,
· posiada nieruchomość poza Siedliskami, ale chce się przeprowadzić z powodu pracy w okolicy,
· nie przekracza określonego limitu dochodów – zgodnie z ustawą o finansowym wsparciu i ustawą o SIM,
· nie ma zaległości finansowych wobec gminy ani tytułów egzekucyjnych.
Wnioski będą podlegać ocenie punktowej, która wyłoni listę najemców. Te z największą liczbą punktów trafią na listę główną, a pozostałe – na listę rezerwową. W przypadku uzyskania podobnej punktacji decyduje kolejność zgłoszeń. Decyzję o ostatecznych wynikach podejmuje burmistrz Bobowej.
– Dzięki negocjacjom prowadzonym przez samorząd gminy Bobowa z SIM Tarnów do nowych obiektów zostanie dodatkowo doprowadzona instalacja gazowa, która stanie się alternatywnym rozwiązaniem dla paneli fotowoltaicznych, ale te również zostaną zamontowane na budynkach. Dzięki temu najemcy będą mieli możliwość korzystania z różnych źródeł energii potrzebnej do zasilania centralnego ogrzewania oraz ciepłej wody użytkowej. To pozwoli na oszczędne użytkowanie mieszkań – informuje burmistrz Bobowej, Marcin Wąs.
Pierwszeństwo w tych kwestiach
Kryteria pierwszeństwa obejmują:
· obecni najemcy mieszkań gminnych (z deklaracją opuszczenia lokalu) – 3 punkty,
· posiadanie książeczki mieszkaniowej – 2 punkty,
· wychowywanie co najmniej 1 dziecka własnego lub przysposobionego – 5 punktów,
· wychowywanie dziecka z orzeczeniem o stopniu niepełnosprawności lub z zaświadczeniem, o którym mowa w ustawie o wsparciu kobiet w ciąży i rodzin „Za życiem” – 5 punktów,
· osoby starsze – 5 punktów,
· brak posiadania własnej nieruchomości – 15 punktów,
· osoby samotnie wychowujące dzieci – 5 punktów,
· zatrudnienie na terenie gminy Bobowa i jednocześnie mieszkanie poza nią – 5 punktów,
· pracę i zamieszkiwanie na terenie gminy Bobowa – 5 punktów,
· rozliczanie się z podatku dochodowego na terenie gminy Bobowa – 5 punktów,
· brak zaległości finansowych i tytułów egzekucyjnych – 10 punktów.
Co dalej?
Osoby widniejące na liście najemców podpiszą umowę o partycypacji w kosztach budowy lokalu. Kaucja, jaka obowiązuje, może wynieść do dwunastokrotności miesięcznego czynszu.
Ogłoszenie o naborze zostało opublikowane na tablicy ogłoszeń Urzędu Miejskiego w Bobowej, w Biuletynie Informacji Publicznej, a także na stronie internetowej Gminy Bobowa. Wnioski można składać od 28 października do końcu roku. W przypadku takiej samej liczby punktów liczy się kolejność. Formularz jest dostępny na stronie bobowa.pl w zakładce Społeczna Inicjatywa Mieszkaniowa.
Pora spełnić marzenie o własnym M!
fot. archiwum Bobowa24














